S-West: Moderne Büroräume (5 Büros) mit Terrasse, Teeküche, WC, Serverraum, in schöner Halbhöhenlage

1.500,- EUR   |     |   112 m²    |   5 Zimmer 
Immobilien_Stuttgart_Vermietung_Gewerbe_Büro faire_Provision_für_Vermieter_Immobilien_Stuttgart_Beratung_Verkauf_Vermietung Vermietung_Bürofläche_Stuttgart_West_Gewerbefläche Vermietung_Büro_Stuttgart_West schönes_Büro_in_Stuttgart_West_günstig_zu_vermieten günstige_Immobilien_Stuttgart_mieten_vermieten Büroraum_mieten_vermieten_Stuttgart_West Haus_Gebäude_Stuttgart_West_mieten_vermieten

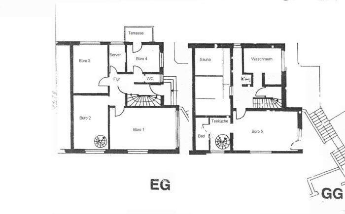
Sehr schöne geräumige Büroräume (4 Büros auf einer Etage, sowie weiterer Büroraum (mit zusätzlichem separatem Eingang), zzgl. Abstell-/Serverraum, kleine Teeküche, Tageslicht-WC und kleines Bad (im GG) zu vermieten.

Eine schöne Terrasse gehört zum Mietobjekt; der Garten, sowie Waschraum und Sauna können mitgenutzt werden.

Die Büroräume werden frisch gestrichen übergeben. Bodenbeläge werden ausgetauscht (in Absprache und nach Wunsch des neuen Mieters, z.B. Parkett, Fliesen, etc.).


Ausstattung/Zubehör:

– 4 großzügige Büroräume (auf einer Etage)
– Terrasse (mit Gartenmitbenutzung)
– 1 Büroraum (mit zusätzl. separatem Eingang)
– Abstell-/Serverraum
– kleine Teeküche
– Tageslicht-WC
– zusätzl. kleines Bad im GG
– Zentralheizung


Lage Haus/Grundstück:

Das Gebäude steht in schöner Halbhöhenlage in Stuttgart West (Nahe Kräherwald).

Nur wenige Minuten bis zur Stadtmitte, sowie zu den Autobahnanschlüssen A81/A8. Bushaltestelle gegenüber.


Sonstiges:

Der Energieausweis ist in Bearbeitung und liegt zur Besichtigung vor.

Möblierung (auch teilweise) z. B. Büroschränke, Schreibtische, etc., können in Absprache mit dem Vermieter übernommen werden.

Eine Einzelgarage kann auf Wunsch separat angemietet werden.


Hinweis Gewerbevermietung:

Provision: Bei Abschluss eines Mietvertrages wird eine Vermittlungs-/ Nachweisprovision in Höhe von 2,38 Monatskaltmieten inklusive 19 % Mehrwertsteuer vom Mieter sofort zur Zahlung fällig.
Anmerkung: Die von uns gemachten Informationen beruhen auf Angaben des Vermieters bzw. der Vermieterin. Für die Richtigkeit und Vollständigkeit der Angaben kann keine Gewähr bzw. Haftung übernommen werden. Eine Zwischenvermietung und Irrtümer sind vorbehalten.


S-West: Moderne Büroräume (5 Büros) mit Terrasse, Teeküche, WC, Serverraum, in schöner Halbhöhenlage: 1 Stern = sehr schlecht2 Sterne = schlecht3 Sterne = zufrieden4 Sterne = gut5 Sterne = sehr gut
5,00 von 5 Sterne, basierend auf 3 abgegebenen Stimmen.
Loading...
Angebots-ID: 593
Verfügbar ab: sofort
Miete: 1.500,- EUR 
Nebenkosten: 300,- EUR
Garage/Stellplatz Miete: 80,- EUR
Gesamtmiete: 1.800,- EUR
Kaution: 5.000,-
Provision für Mieter: Ja
Zimmer: 5
Gesamtfläche: 112 m²
Etagen: 3
Baujahr: 1934
Heizungsart: Zentralheizung
Befeuerungsart: Gas
GarageTerrasse

Die Adresse erhalten Sie auf Anfrage.


70193 Stuttgart West
Deutschland